AutoCAD
Project Overview:
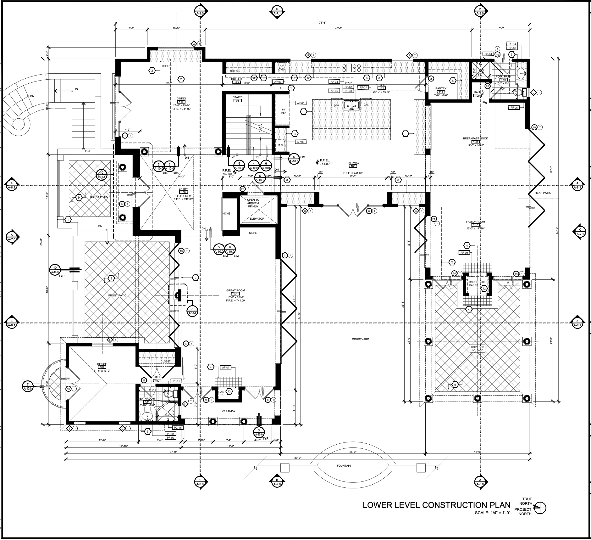
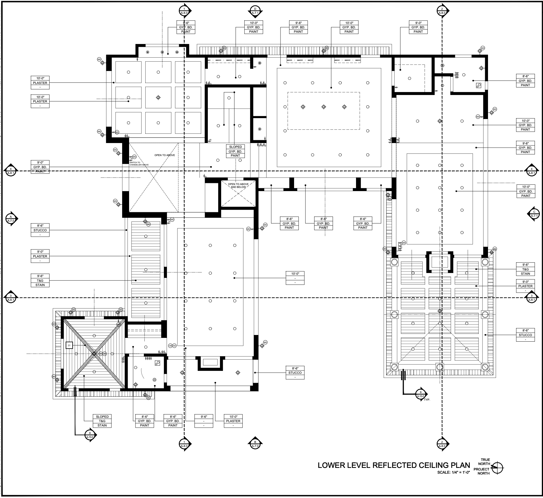
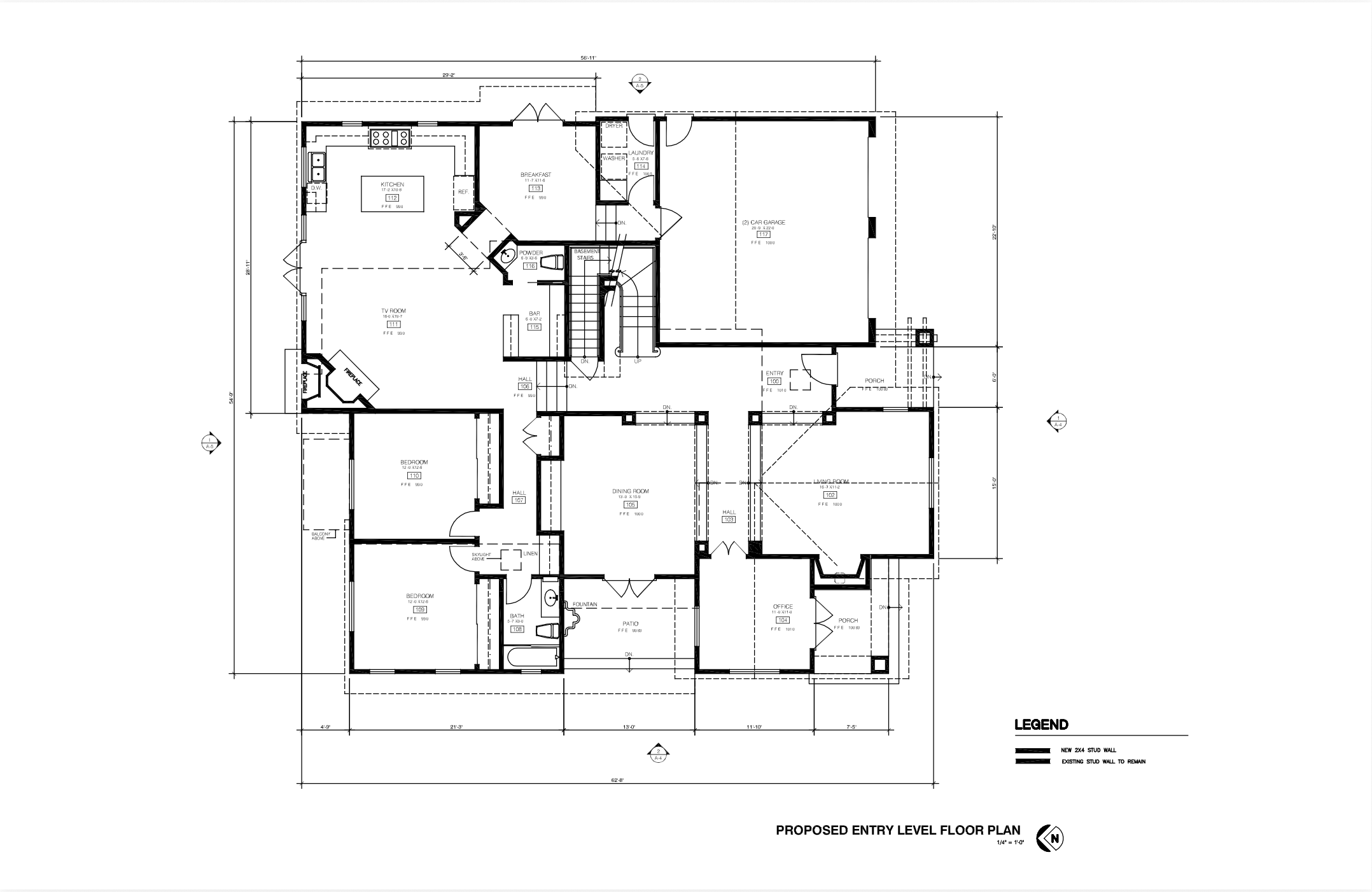
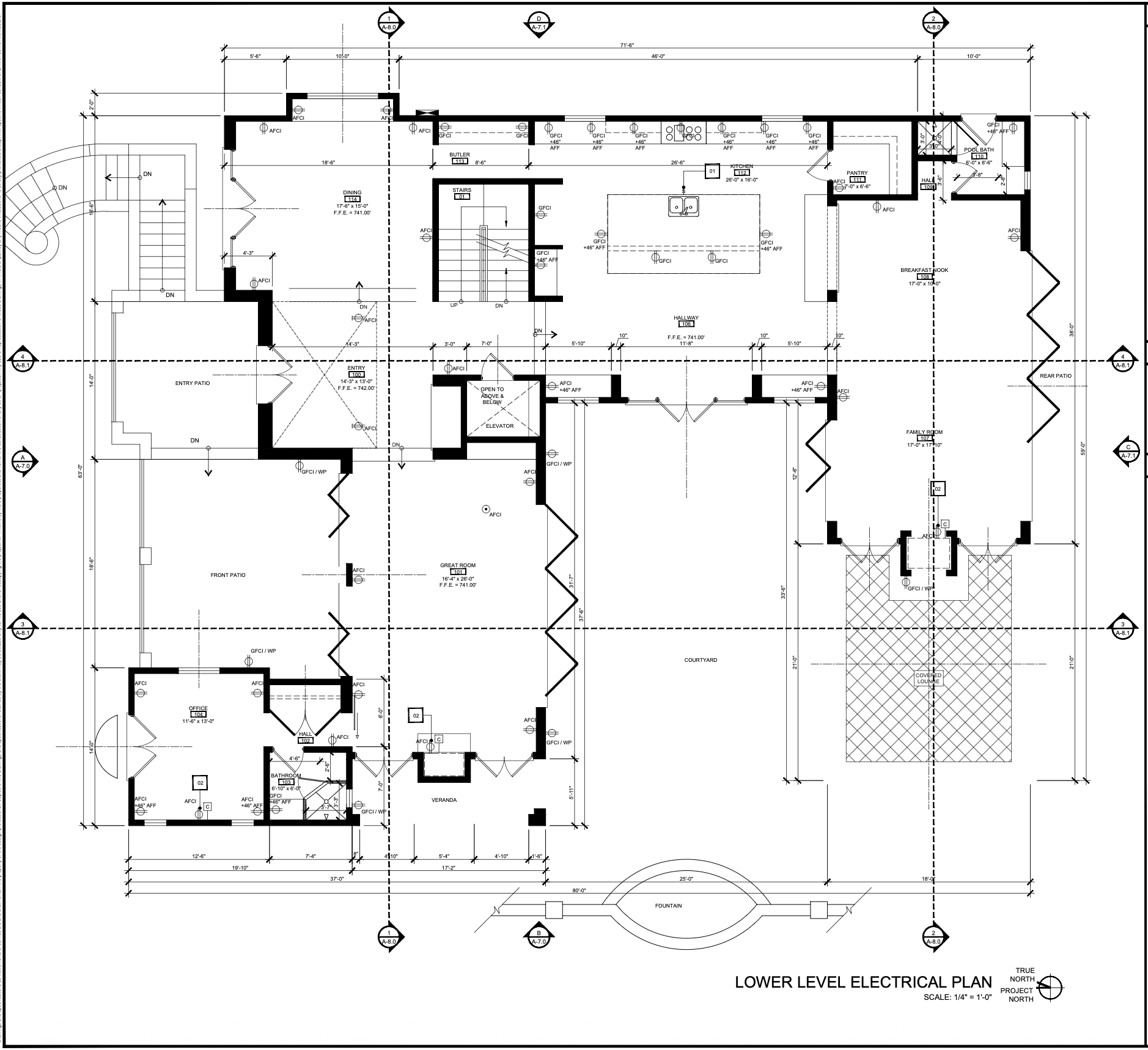
Rincon Lane is a residential documentation study focused on developing a coordinated AutoCAD drawing set from an existing architectural reference. The project emphasized technical accuracy, layer organization, annotation standards, and sheet composition consistent with professional documentation practices.
The scope involved translating an existing plan set into a clean, organized plan set while maintaining alignment between floor plans, elevations, and sectional information.
CAD
✳︎
Residential Design
✳︎
Architectural Plan
✳︎
Section
✳︎
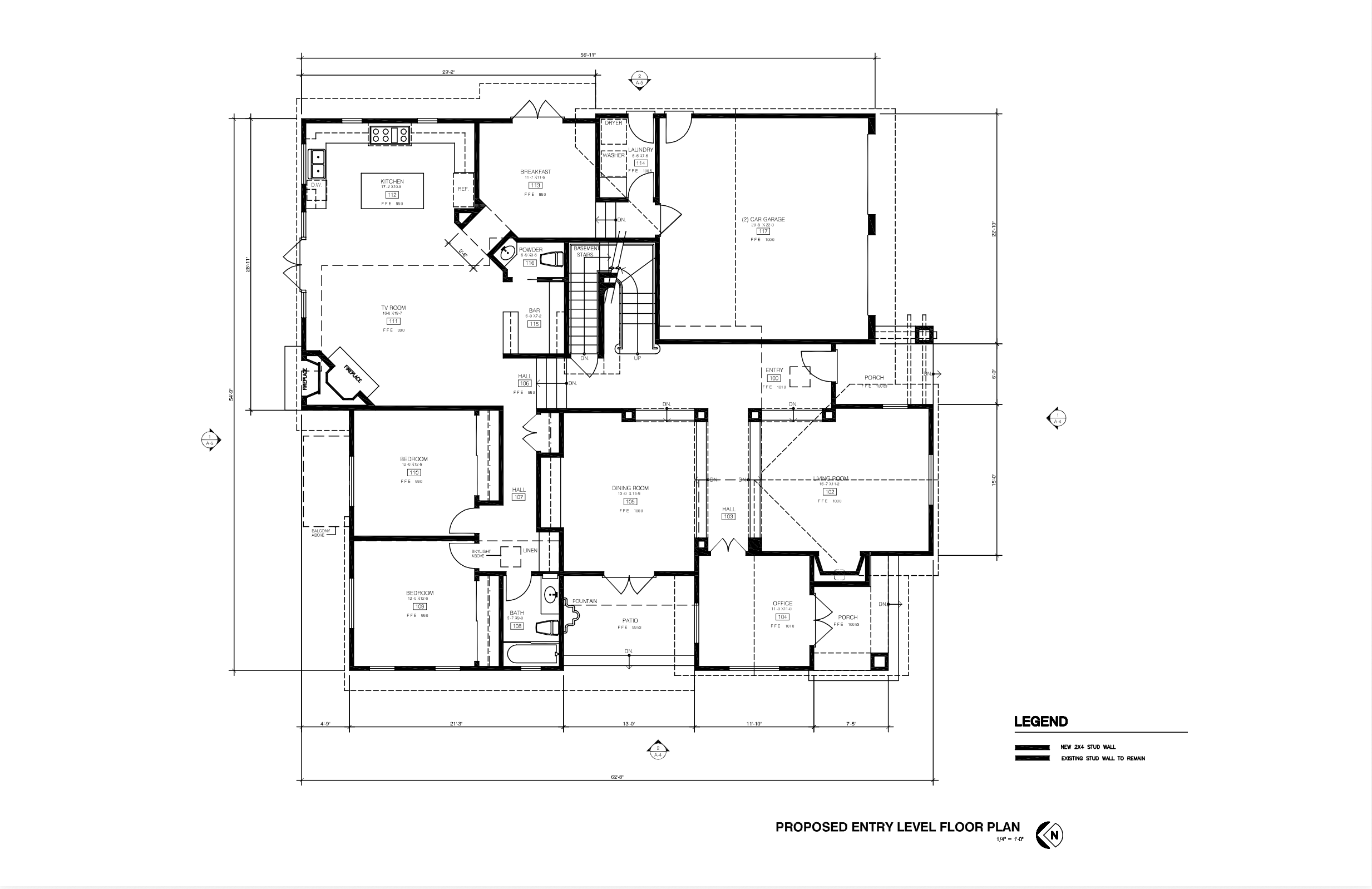
Floor Plan
*
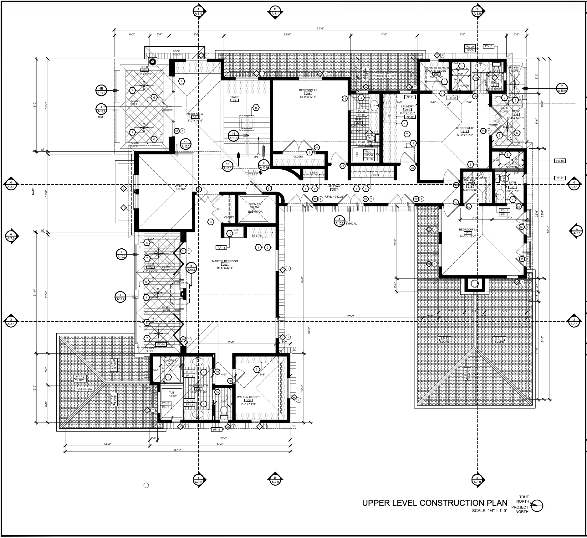
Details
*
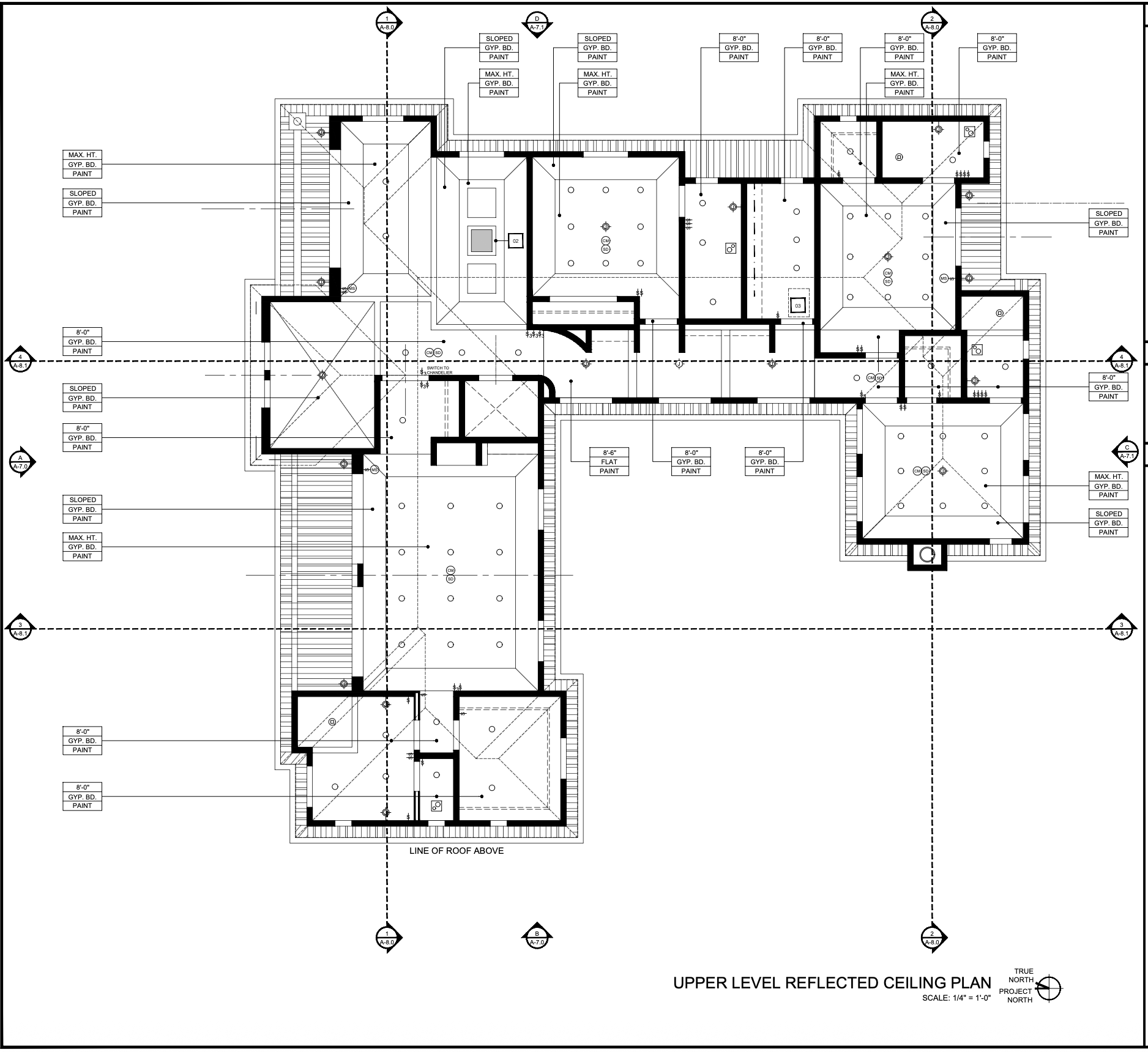
RCP
*
CAD ✳︎ Residential Design ✳︎ Architectural Plan ✳︎ Section ✳︎ Floor Plan * Details * RCP *
Scope & Deliverables:
Dimensioned floor plans
Exterior and/or interior elevations
Building sections
Title block and sheet layout organization
Layer management and annotation system
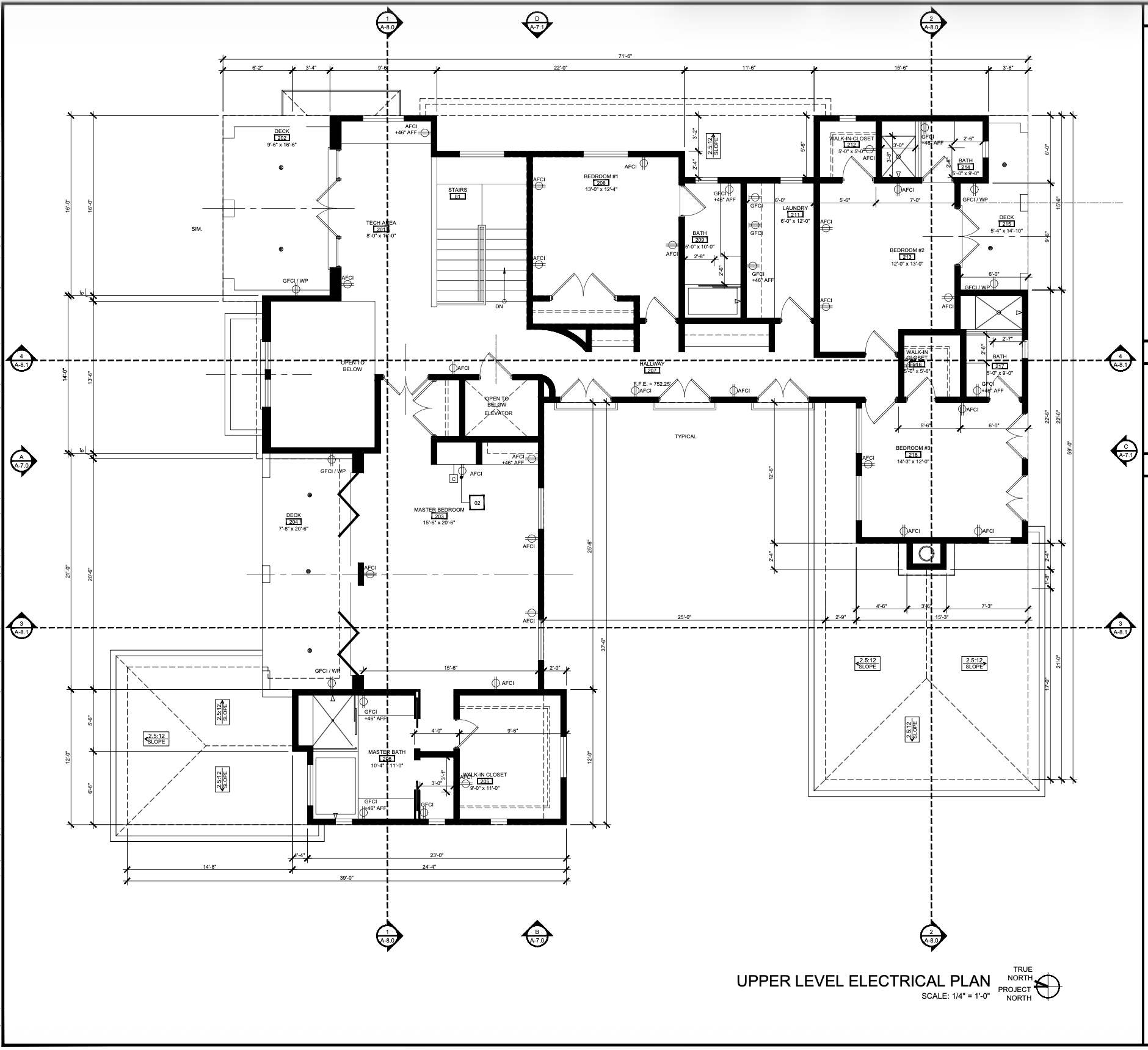
All drawings were drafted to scale with consistent line weight hierarchy and professional graphic standards.
Design Intent:
The intent of the Rincon Lane study was to develop a clear, coordinated documentation set that communicates spatial organization and architectural relationships with precision. Emphasis was placed on clarity, hierarchy, and consistency across drawings to ensure that plans, elevations, and sections read as a cohesive system.
Technical Highlights:
This project centered on developing fluency in AutoCAD as a documentation tool, with particular attention to:
Structured layer organization
Line weight control (cut vs. projection)
Dimensioning standards and notation clarity
Alignment between plan and elevation views
Sheet composition and viewport management
The completed sheet demonstrates coordinated architectural drawings and clear graphic hierarchy.